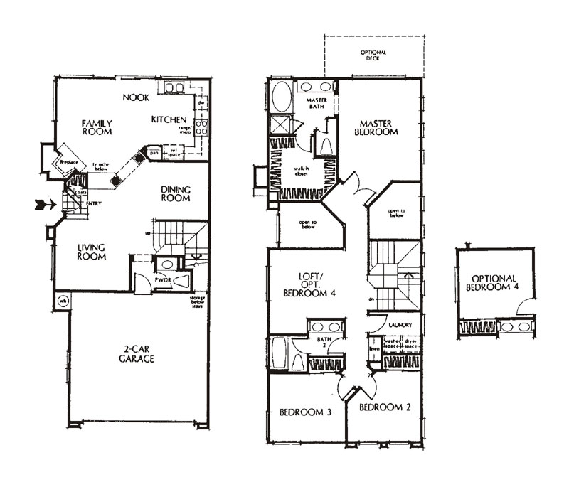
Plan 4

Return To Sunrise Home Page