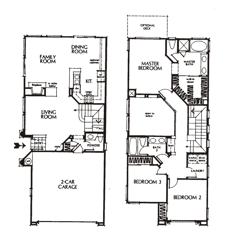
Plan 3

Return To Sunrise Home Page