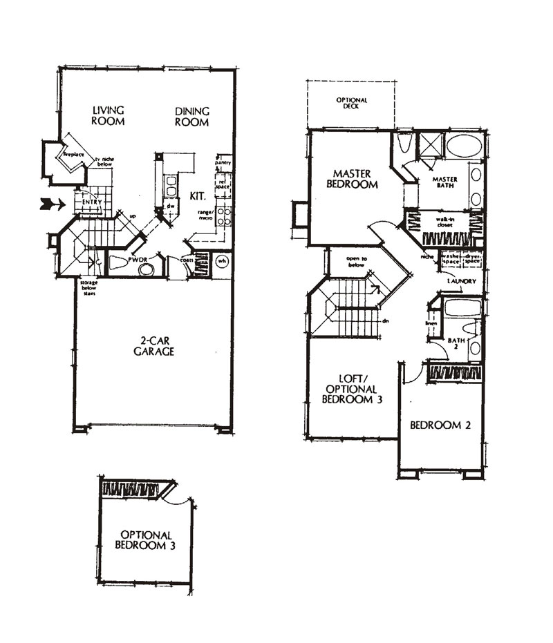
Plan 2

Return To Sunrise Home Page